Что нужно знать про приточно-вытяжные вентиляционные установки
Содержание:
1. Конструктивные особенности ПВУ
2. Принцип работы
2.1 5 преимуществ установки приточно-вытяжной вентиляции
3. Типы приточно-вытяжных установок
3.1 Отличия приточно-вытяжной вентиляционной установки с рекуперацией тепла
3.2 ПВУ с роторным рекуператором
3.3 Приточно-вытяжная установка с пластинчатым ротором
4. Как происходит управление ПВУ
5. Как подобрать установку для приточно вытяжной вентиляции
6. Схема подключения установки приточно-вытяжной вентиляции
Вопрос, что такое приточно-вытяжная вентиляционная установка и чем лучше вентилятора, в первую очередь задают владельцы загородных домостроений, небольших магазинов, производственных цехов. Повышенный интерес к многофункциональному климатическому оборудованию объясняется эффективностью применения и возможностью создать комфортный микроклимат во всех помещениях одновременно. Насыщенная кислородом и очищенная от аллергенов атмосфера повышает работоспособность, устраняет головную боль, снижает утомляемость.
Компактная приточно-вытяжная установка (ПВУ) — это центральный элемент высокопродуктивной вентиляционной системы, который несёт ответственность за воздухообмен и решает три задачи:
- осуществляет принудительный приток свежего воздуха с улицы;
- оперативно очищает приточную воздушную массу от механических и газодымовых примесей с помощью мембранных фильтров;
- выводит за пределы помещения отработанный воздухопоток.
Причём новые поступления и выброс застойного воздуха происходят одновременно, но потоки нигде не смешиваются. Такая система вентиляции с участием рекуперативной ПВУ считается эффективной и экономически целесообразной для монтажа в частных домах, промышленных и коммерческих зданиях площадью свыше 100 кв. м.
Конструктивные особенности ПВУ
Рынок климатической техники представляет приточно-вытяжные вентиляционные установки в виде моноблока, включающего все необходимые компоненты (схема 1), или набора, состоящего из отдельных секций. Компактные моноблочные конструкции в шумоизолированном корпусе не требуют прокладки воздуховодов под потолком, комплектуются:
- выносливыми вентиляторами приточного и вытяжного назначения;
- системой фильтров со степенью очистки EU5;
- экономичным ЕС- или АС-электродвигателем;
- системой автоматического управления;
- пластинчатым либо роторным рекуператором;
- встроенными термоконтактами для защиты мотора от перегрева с автоматическим перезапуском при нагреве до +125°C;
- электрическим, водяным или фреоновым нагревателем.
Моноблоки ориентированы на продолжительную интенсивную эксплуатацию. Разнообразие модельной линейки позволяет подобрать агрегат с рекуперацией тепла, увлажнением и освежением воздуха для конкретных условий применения.
Сема 1. Конструкция ПВУ
Принцип работы
Так как в системе вентиляции участвуют два воздухопотока, деятельность приточно-вытяжной установки основывается на особенностях циркуляции воздушных масс по двухконтурной схеме. Холодный наружный и тёплый отработанный воздух встречаются в теплообменнике, где обмениваются теплом через его стенки.
Схема 2. Принцип действия ПВУ с рекуператором
Приточный воздухопоток проходит через воздушные фильтры, очищается от загрязнений, отбирает тепло у выходящего и отправляется в помещение. Внутренний застойный воздух охлаждается и удаляется наружу.
5 преимуществ установки приточно-вытяжной вентиляции
Появление энергоэффективной ПВУ с рекуперацией в доме или офисе в корне меняет качество жизни и позволяет:
- предотвращать утечку тепла, ежедневно экономить 50-75% энергоресурса и снижать расходы на отопление;
- регулировать степень влажности, круглогодично создавать здоровый микроклимат в помещениях;
- с помощью автоматики поддерживать комфортную для работы и отдыха температуру;
- снизить заболеваемость и укрепить иммунитет сотрудников или членов семьи в доме;
- бесперебойно получать свежий чистый воздух без примеси выхлопных газов.
Помимо этого, компактная приточно-вытяжная вентиляционная установка не нуждается в сложном уходе и частом техобслуживании. Устройство имеет элегантный привлекательный вид, гармонично вписывается в интерьер.
Типы приточно-вытяжных установок
Увеличивающаяся конкуренция в сфере производства климатического оборудования заставляет изготовителей искать новые способы привлечения внимания целевой аудитории. Потенциальным покупателям предлагаются прогрессивные модели ПВУ, которые различаются между собой ценой, мощностью и набором функций.
Высокоэффективные устройства с рекуперацией тепла разделяются на две категории — с роторным и пластинчатым рекуператором. В условиях ухудшающейся экологии с помощью полноценного воздухообмена можно избавиться от букета заболеваний, характерных для жителей больших городов, сделать крепким сон, укрепить нервную систему.
Отличия приточно-вытяжной вентиляционной установки с рекуперацией тепла
Экономичные ПВУ с рекуператором неизменно пребывают на пике продаж. Наличие функции рекуперации тепла подразумевает нагревание приточного воздуха за счёт тепловой энергии, которая отбирается у выходящего потока. Таким образом можно уменьшить потребности в отоплении ранней осенью и весной, сократить затраты на электричество, необходимое для работы агрегата. В таких установках приточно-вытяжной вентиляции производители устанавливают воздухонагреватели меньшей производительности, что представляет ещё одну статью экономии.
Схема 3. Приточно-вытяжной комплекс с рекуператором
Для помещений, где важна экономия электроэнергии, ПВУ с рекуперацией тепла становятся настоящей находкой. Оборудование данного типа востребовано для обогрева офисов, холлов гостиниц, просторных коттеджей и загородных домов. При отсутствии хозяев установка ПВУ будет работать на малых оборотах и поддерживать уютную температуру при отключённом электрическом воздухонагревателе. В этом её существенное превосходство перед привычной вытяжной вентиляцией.
ПВУ с роторным рекуператором
Вентиляционно-вытяжное оборудование с роторным рекуператором считается безошибочным выбором для местностей с холодной морозной зимой. С таким помощником приточно-вытяжная установка круглогодично сохраняет безукоризненную работоспособность. При отрицательных температурах воздуха за окном оборудование не обмерзает, в летний зной не перегревается. Подавляющее большинство моделей производители комплектуют конденсационными роторными устройствами, но их постепенно вытесняют ПВУ с роторами сорбционного типа. Они больше походят для умеренного климатического пояса России. Демонстрируют высокий коэффициент полезного действия при минимальном расходе электроэнергии, поддерживают в помещении необходимый уровень влажности.
Приточно-вытяжная установка с пластинчатым ротором
Агрегаты, которые оснащаются роторами с подвижными либо неподвижными пластинами, из модельного ряда ПВУ с рекуператором выделяются компактностью, малым весом и значительным ресурсом прочности. Помимо этого, позволяют на 90% сократить расходы на подогрев воздушной массы. Пластины-перегородки изготавливаются из алюминиевого сплава, стали, полимерной пластмассы, выполняют роль разделителя вытяжного и приточного воздухопотока. Устройства с пластинчатым теплообменником комфортны в применении, несложны в техническом обслуживании, на пониженных оборотах вентилятора работают особенно тихо. После ремонта функционируют не меньше 4-5 лет.
Как происходит управление ПВУ
В конструкции приточно-вытяжных вентиляционных установок акцент поставлен на экономичности, производительности и эргономичности. Дополнительным достоинством приборов можно считать возможность настройки в зависимости от ситуации с помощью многофункционального пульта с индикатором. Дистанционно можно производить:
- включение и выключение устройства;
- изменение стандартных параметров микроклимата;
- переход в режим автоматического контроля;
- регулирование температуры и влажности атмосферы в помещении;
- переключение на режим приточной вентиляционной установки;
- плавное снижение мощности и скорости вращения крыльчатки вентилятора;
- установку нужного расхода воздуха;
- переход на вытяжную вентиляцию и другие действия.
В стандартную комплектацию ПВУ входит 10-метровый провод для пульта.
Как подобрать установку для приточно вытяжной вентиляции
Планируя купить приточно-вытяжную установку, важно учитывать, что это технически сложное устройство с множеством характеристик, от которых зависит качество воздухообмена в доме. При подборе правильной модели следует обращать внимание на несколько моментов:
- Площадь помещений. Как правило, производители указывают, для каких пространств рекомендуется конструкция. Для дома площадью 100 кв. м понадобится агрегат производительностью по воздуху 800-1000 м3/ч.
- Вид ПВУ. Если вентиляция необходима в одной комнате, достаточно приобрести бытовой рекуператор, то есть децентрализованную модель ПВУ. Для устройства полноценного воздухообмена во всем доме или коттедже, нужно покупать все элементы системы — воздуховоды, приточно-вытяжную установку, тройники для разводки, распределительные устройства для приточного и вытяжного воздуха.
- Тип рекуператора. Для регионов с зимней температурой ниже -15оС лучше покупать модель с роторным рекуператором.
- Показатели шумности. Для комфортного пользования вентиляцией звуки не должны превышать 30-40 ДБ. Но в любом случае саму ПВУ рекомендуется размещать вдали от спальни и детской. Местом монтажа можно выбирать кладовку, гардеробную, нишу в прихожей.
- Особенности системы фильтров. Для дома или городской квартиры предпочтителен фильтр тонкой очистки.
- Функциональные возможности автоматики. Изготовленные с внедрением передовых технологий ПВУ располагают автоматической защитой от перегрузки, управлением датчиками температуры, давления, влажности, концентрации СО2 в атмосфере помещения.
- Коэффициент полезного действия при теплообмене.
- Энергопотребление.
Все вопросы, касающиеся технических параметров, нюансов монтажа и эксплуатации устройства, можно задать продавцу-консультанту при оформлении покупки. Отдав предпочтение более дорогой ПВУ, в будущем можно сэкономить на эксплуатационных расходах.
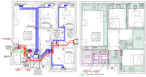
Схема подключения установки приточно-вытяжной вентиляции
Несмотря на то, что моноблочные ПВУ принято считать несложными в монтаже, созданием вентиляции, расчётом воздухообмена и подбором диаметра воздуховодов должны заниматься опытные мастера. В результате грамотно проведённых монтажных работ получается немалая инженерная конструкция. Профессиональные действия подразумевают выполнение ряда подготовительных и основных рабочих мероприятий, включающих:
- выбор места установки ПВУ, определение точек забора приточного и выброса отработанного воздуха;
- разработку маршрута прохождения воздуховодов;
- составление схемы подключения и стыковки компонентов системы;
- выполнение замеров толщины стены;
- вырезание отверстий, подготовку патрубков для настенных наружных решёток;
- установку переходников и клапанов обратной тяги;
- монтаж воздуховодов;
- выполнение разводки по комнатам.
Завершающим аккордом работы являются установка пульта управления, испытание системы, предоставление гарантий.
Схемы монтажа вентиляции с подключением моноблочной приточно-вытяжной установки.
Спрос на безотказно работающие приточно-вытяжные вентиляционные установки стремительно увеличивается. Популярность устройств с автоматической регулировкой микроклиматических показателей обуславливается высокой производительностью, практичностью и несложным техобслуживанием.
Прогрессивные конструкции широко используются для монтажа на объектах частной собственности, в гостиницах, продуктовых базах и административных зданиях. Техобслуживание приточно-вытяжных агрегатов в основном заключается в периодической замене воздушных фильтров, загрязнение которых зависит от экологии места расположения дома. Замена производится примерно один раз в квартал.